top of page
Architektur Halder
ATi
Isny | Baubeginn 2024 | LP 1-9
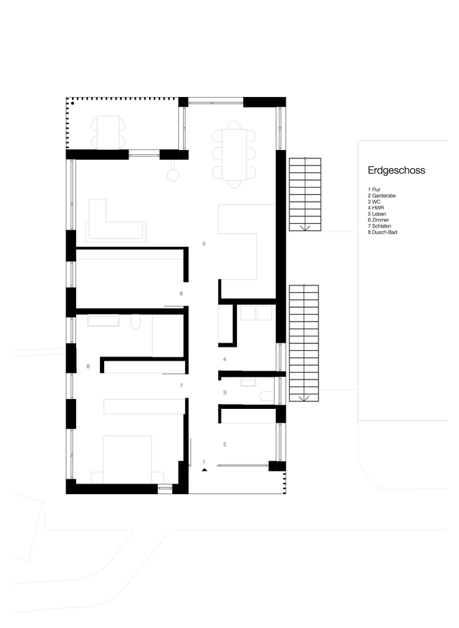
Wir befinden uns in der Bauphase dieses Anbaus. Unweit der Isnyer Altstadt entsteht auf der Restfläche dieses Grundstücks ein Anbau auf einer Ebene. Ausgeführt in Hybridbauweise fügt sich das Objekt mit der klassischen Dachform in die Umgebung.
Grundstücksgröße:
Wohnfläche Anbau:
Nutzfläche:
Wohneinheiten:
ca. 900 qm
ca. 135 qm
ca. 30 qm
1

bottom of page














